Descrizione

Proponiamo in vendita un prestigioso appartamento in fase di integrale ristrutturazione, situato all'interno di un signorile contesto degli anni '60, attualmente oggetto di un completo rifacimento delle facciate. L'intervento garantisce un connubio perfetto tra il fascino architettonico originale e i più elevati standard abitativi contemporanei.
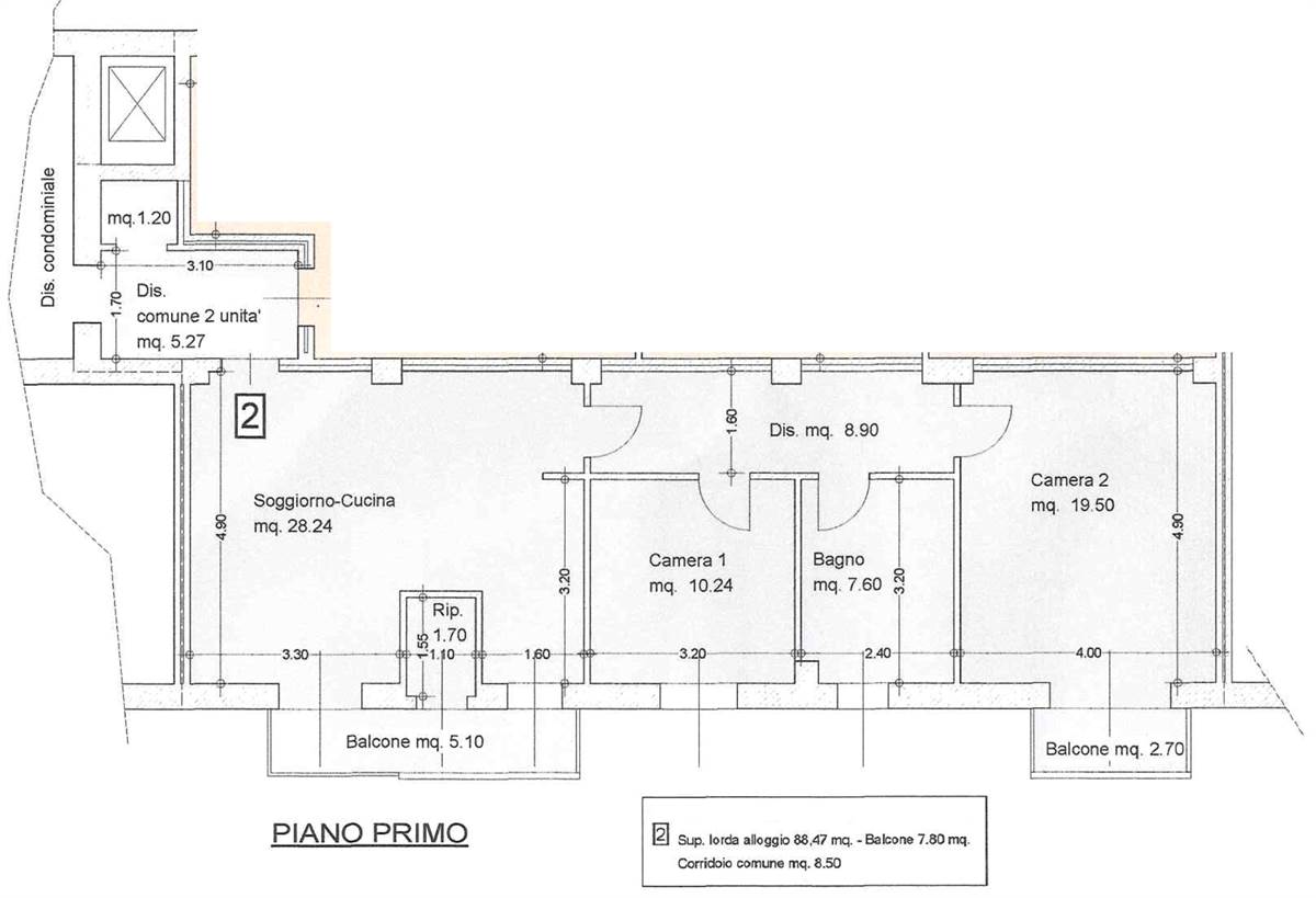
L’abitazione si distingue per una distribuzione degli spazi razionale e funzionale:

Zona Giorno: Ampio e luminoso soggiorno con cucina a vista, progettato per favorire la convivialità, con accesso diretto al balcone principale.

Zona Notte: Un disimpegno funzionale, predisposto per l'installazione di armadiature su misura, conduce alla camera singola, al bagno padronale e alla master suite matrimoniale, quest'ultima dotata di bagno privato en-suite e secondo balcone dedicato.

Pertinenze: Completa la proprietà una cantina di generosa metratura (11 mq).

Caratteristiche Tecniche e Innovazione
L'immobile viene riqualificato con tecnologie di ultima generazione per garantire il massimo comfort termico e acustico:

Efficienza Energetica: Impianto di riscaldamento e raffrescamento con pompa di calore e nuovi serramenti ad alte prestazioni.

Qualità dell'Aria: Sistema di Ventilazione Meccanica Controllata (VMC) in ogni ambiente per un ricircolo d'aria costante e salubre.

Personalizzazione: Ampio capitolato disponibile con possibilità di scelta delle finiture (pavimenti e rivestimenti) per cucire la casa sulle proprie esigenze estetiche.

Dettagli della Vendita
Stato: In fase di rifacimento totale.

Consegna prevista: Ottobre/Novembre 2026.

Plus: Immobile pari al nuovo in edificio riqualificato.


Caratteristiche principali

Stato Immobile
Ristrutturato
Grado
Signorile
Posizione
Centro Storico
Lati Liberi
1
Tipo Soggiorno
Soggiorno
Tipo Cucina
A Vista
Riscaldamento
Autonomo
Tipo Riscaldam.
Pompa di Calore
Tipo Impianto
Aria
Fonte Energetica
Elettrico
Acqua Calda
Autonoma
Raffrescamento
Split
Infissi
PVC Doppio Vetro
Serramenti
Nuovo
Persiana
Tapparella PVC
Pavim. Giorno
Laminato
Pavim. Notte
Laminato
Pavim. Cucina
Laminato
Pavim. Bagno
Gres Porcellanato
VMC
Si
Accessori: Aria Condizionata, Ascensore, Doppi Vetri, Porta Blindata, Tapparelle Elettriche, Zanzariere

Richiedi informazioni

Invia
Cookie preference